Opis nieruchomości:
SEGMENT 114 M2 4 POKOJE 3 POZIOMY 2 MIEJSCA POSTOJOWE
Mam przyjemność przedstawić Państwu skrajny segment o powierzchni niecałych 114 m2 położony na kameralnym, nowym osiedlu do własnej aranżacji przy ul. Piasta Kołodzieja 58B na Warszawskiej Białołęce- Brzeziny. Nieruchomość wyróżnia się funkcjonalnym układem pomieszczeń, dużą ilością naturalnego światła oraz trzema kondygnacjami zapewniającymi komfortową przestrzeń dla całej rodziny.
Dom charakteryzuje się nowoczesną architekturą oraz wysokim standardem wykończenia części wspólnych osiedla. Kameralna zabudowa zapewnia poczucie prywatności, a jednocześnie wygodny dostęp do infrastruktury miejskiej.
Najważniejsze atuty nieruchomości:
~ dostępna od zaraz – brak konieczności oczekiwania na zakończenie inwestycji czy odbiory deweloperskie,
~ spokojne, zamieszkane osiedle – większość lokali z pierwszego etapu jest już użytkowana, dzięki czemu nie ma hałasu i ciągłych prac wykończeniowych,
~ duży narożny ogród („L”) – większa przestrzeń i łatwiejsza aranżacja niż w lokalach środkowych.
~ przemyślany układ funkcjonalny przygotowany według projektu idealnego dla rodziny 2+2,
~ wykonane ściany działowe zgodnie z projektem – oszczędność czasu i kosztów.
~ rozprowadzona instalacja elektryczna (duża liczba punktów) oraz dostosowana instalacja wodno-kanalizacyjna.
~ przygotowana instalacja pod klimatyzację w całym domu,
~ możliwość wykonania dodatkowego miejsca parkingowego na działce,
~ nie jest wymagana zgoda MSWiA na zakup nieruchomości.
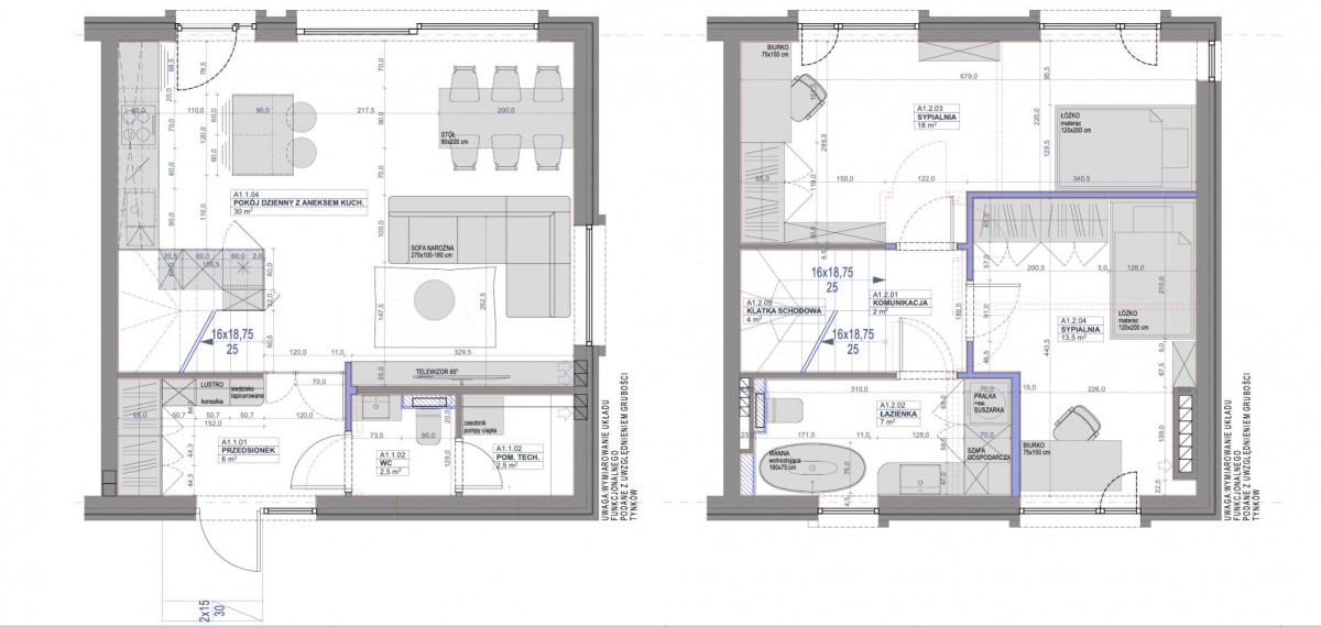
Na parterze znajduje się przestronna strefa dzienna z salonem, jadalnią oraz otwartą kuchnią. Duże przeszklenia HS zapewniają doskonałe doświetlenie wnętrza (ekspozycja południowa) i bezpośrednie wyjście do ogrodu.
Na tym poziomie znajduje się również wiatrołap/ miejsce do zaaranżowania szaf wnękowych oraz toaleta dla gości z zapleczem technicznym (możliwość oddzielenia).
Pierwsze piętro stanowi prywatną strefę domowników. Znajdują się tu dwie duże ustawne sypialnie oraz łazienka. Przemyślany układ pomieszczeń pozwala na wygodne zaaranżowanie pokoi zarówno dla rodziny z dziećmi, jak i osób pracujących zdalnie.
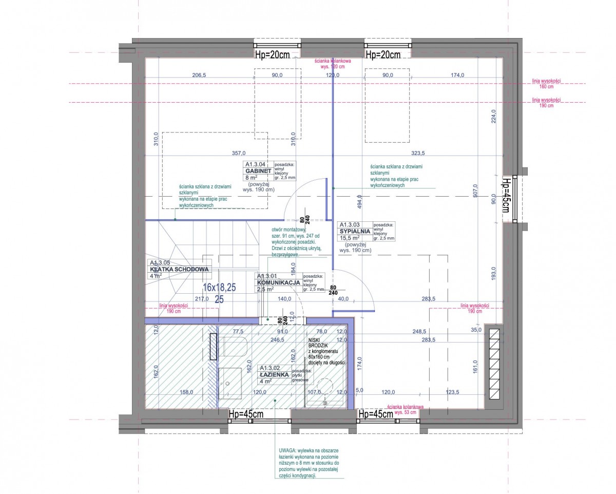
Drugie piętro to dodatkowa, bardzo funkcjonalna przestrzeń, która może pełnić rolę dużej sypialni master, pokoju rekreacyjnego, gabinetu lub strefy hobby – to miejsce ma potencjał!
Instalacje:
~ instalacja elektryczna, instalacja pod podłączenie fotowoltaika,
~ wyprowadzenie zasilania do ładowarki samochodowej,
~ instalacja centralnego ogrzewania, ogrzewanie podłogowe w całym domu (wylewki anhydrytowe),
~ pompa ciepła Ferroli Omnia 8kW powietrze-powietrze,
~ instalacja teletechniczna,
~ wentylacja grawitacyjna.
Media miejskie: prąd, wodociąg, światłowód, obecnie szambo 7m3 (przystosowane do podłączenia do kanalizacji miejskiej).
Odrębna własność z Księgą Wieczystą (możliwość posiłkowania się kredytem przy zakupie)- pomagamy w formalnościach.
SEGMENT 114 M2 4 POKOJE 3 POZIOMY 2 MIEJSCA POSTOJOWE
Mam przyjemność przedstawić Państwu skrajny segment o powierzchni niecałych 114 m2 położony na kameralnym, nowym osiedlu do własnej aranżacji przy ul. Piasta Kołodzieja 58B na Warszawskiej Białołęce- Brzeziny. Nieruchomość wyróżnia się funkcjonalnym układem pomieszczeń, dużą ilością naturalnego światła oraz trzema kondygnacjami zapewniającymi komfortową przestrzeń dla całej rodziny.
Dom charakteryzuje się nowoczesną architekturą oraz wysokim standardem wykończenia części wspólnych osiedla. Kameralna zabudowa zapewnia poczucie prywatności, a jednocześnie wygodny dostęp do infrastruktury miejskiej.
Najważniejsze atuty nieruchomości:
~ dostępna od zaraz – brak konieczności oczekiwania na zakończenie inwestycji czy odbiory deweloperskie,
~ spokojne, zamieszkane osiedle – większość lokali z pierwszego etapu jest już użytkowana, dzięki czemu nie ma hałasu i ciągłych prac wykończeniowych,
~ duży narożny ogród („L”) – większa przestrzeń i łatwiejsza aranżacja niż w lokalach środkowych.
~ przemyślany układ funkcjonalny przygotowany według projektu idealnego dla rodziny 2+2,
~ wykonane ściany działowe zgodnie z projektem – oszczędność czasu i kosztów.
~ rozprowadzona instalacja elektryczna (duża liczba punktów) oraz dostosowana instalacja wodno-kanalizacyjna.
~ przygotowana instalacja pod klimatyzację w całym domu,
~ możliwość wykonania dodatkowego miejsca parkingowego na działce,
~ nie jest wymagana zgoda MSWiA na zakup nieruchomości.
Na parterze znajduje się przestronna strefa dzienna z salonem, jadalnią oraz otwartą kuchnią. Duże przeszklenia HS zapewniają doskonałe doświetlenie wnętrza (ekspozycja południowa) i bezpośrednie wyjście do ogrodu.
Na tym poziomie znajduje się również wiatrołap/ miejsce do zaaranżowania szaf wnękowych oraz toaleta dla gości z zapleczem technicznym (możliwość oddzielenia).
Pierwsze piętro stanowi prywatną strefę domowników. Znajdują się tu dwie duże ustawne sypialnie oraz łazienka. Przemyślany układ pomieszczeń pozwala na wygodne zaaranżowanie pokoi zarówno dla rodziny z dziećmi, jak i osób pracujących zdalnie.
Drugie piętro to dodatkowa, bardzo funkcjonalna przestrzeń, która może pełnić rolę dużej sypialni master, pokoju rekreacyjnego, gabinetu lub strefy hobby – to miejsce ma potencjał!
Instalacje:
~ instalacja elektryczna, instalacja pod podłączenie fotowoltaika,
~ wyprowadzenie zasilania do ładowarki samochodowej,
~ instalacja centralnego ogrzewania, ogrzewanie podłogowe w całym domu (wylewki anhydrytowe),
~ pompa ciepła Ferroli Omnia 8kW powietrze-powietrze,
~ instalacja teletechniczna,
~ wentylacja grawitacyjna.
Media miejskie: prąd, wodociąg, światłowód, obecnie szambo 7m3 (przystosowane do podłączenia do kanalizacji miejskiej).
Odrębna własność z Księgą Wieczystą (możliwość posiłkowania się kredytem przy zakupie)- pomagamy w formalnościach.
Więcej informacji:
Typ transakcji: Sprzedaż
Powierzchnia: 113.89 m2
Cena: 1365000 zł
Liczba pokoi: 4
Piętro: 0 z 2
Strony świata:
Stan prawny: własność
Rok budowy: 2025
Wysokość apartamentu: brak danych cm
Czynsz: 0 zł
Winda: NIE
Rodzaj kuchni: Aneks kuchenny
Jasna kuchnia: NIE
Dodatkowe powierzchnie:
Rynek: wtórny
DOKŁADNA LOKALIZACJA
Kraj: Polska
Województwo: MAZOWIECKIE
Lokalizacja: Warszawa Białołęka
Ulica: Piasta Kołodzieja
MEDIAGaz: NIE
Woda: TAK
Kanalizacja: TAK
WSPÓŁPRACA
Oferta biura współpracującego. Zadzwoń i dowiedz się, czy za tę ofertę pobieramy prowizję.
DOKŁADNA LOKALIZACJA
MEDIA
WSPÓŁPRACA

DODATKOWE
POWIERZCHNIE
Loggia: NIE
Balkon: NIE
Taras: NIE
Piwnica: NIE
Schowek: TAK
Komórka: NIE
Antresola: NIE
Parking: TAK
Garaż podziemny: NIE
Garaż: NIE
Ogród: TAK

W POBLIŻU
NIERUCHOMOŚCI
Basen
Bank
Apteka
Centrum handlowe
Przychodnia
Plac zabaw
Szkoła podstawowa
Sklep spożywczy
Siłownia

BEZPIECZEŃSTWO
BUDYNKU

KOMUNIKACJA
DO NIERUCHOMOŚCI
Autobus
DOWIEDZ SIĘ WIĘCEJ
O TEJ NIERUCHOMOŚCI

Zawsze chętnie
pomagamy w nieruchomościach!
Telefon: 730 007 727
Mail: kiendys@heritage-estate.pl


Nieruchomość: dom (szeregowy)
Typ transakcji: Sprzedaż
Ulica: Piasta Kołodzieja
Powierzchnia: 114 m²
Cena: 1 365 000 zł


















